FREDERIKSSUND: De første nybyggere i det stort anlagte byudviklingsprojekt Vinge Centrum er flyttet ind og kan i disse dage se til, at projektet har givet kommunen graverende problemer.
Bekymringen over den økonomiske situation i mega-projektet, der hører til blandt de absolut største byudviklingsprojekter, begyndte i administrationen, oplyser borgmester John Schmidt Andersen (V) til DR Nyheder.
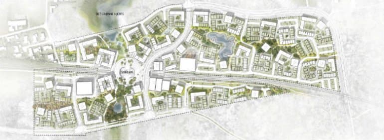
Når den nye by står færdig, skal den kunne rumme hele 20.000 indbyggere, der blandt andet skal betjenes af en nybygget S-togsstation.
I denne uge kom det frem, at der ikke er solgt tilstrækkeligt med byggerettigheder, og at der er et hul i kommunekassen på 163 mio. kr. Den kendsgerning afviser viceborgmester Lars Thelanden Bostrøm (DF) ikke - og han mener samtidig ikke, 'at det vil gå ud over borgerne'.
Embedsmænd og rådgivere forhandler
Det er mindre end et halvt år siden, at Frederikssund Kommune sammen med AP Pension og entreprenørvirksomheden MT Højgaard afslørede en aftale, der skulle tilføre udviklingen af Vinge Centrum omkring en mia. kr.
Overfor DR Nyheder slår John Schmidt Andersen nu fast, at aftalegrundlaget ikke er faldet på plads, men han mener heller ikke, at der er 'grund til bekymring'.
Frederiksborg Amtsavis beskriver, hvordan han 'langt fra har opgivet håbet om, at de manglende indtægter kommer i kommunekassen i det nye år'.
Kommunens embedsmænd og rådgivere forhandler fortsat med AP Pension og MT Højgaard om salget af byggeretter til 150.000 etagemeter byggeri i op til otte etager i Vinge Centrum, og den såkaldte konsolideringsfase udløber den 10. februar 2018, hvor forhandlingerne skal være afsluttet.
- Jeg håber ved Gud, at de indtægter kommer i hus. Men jeg er ikke i det forhandlingsrum, fastslår borgmester John Schmidt Andersen.
Planerne om den nye bye rækker videre endnu - og omfatter blandt andet kulturcenter, børnehus, skole og seniorresort, fremgik det, da AP Pension i juni gik ind i projektet:
Ud over etablering af boliger, erhvervsejendomme og detailhandel, omfatter AP Pensions investering også etablering af bygninger, som skal rumme et kulturcenter og et børnehus i OPP-samarbejde, samt option på opførelse af en skole, også i OPP-regi.
AP Pension arbejder endvidere på at etablere et seniorresort i Vinge med seniorvenlige udlejningsboliger, der er velegnede til personer i den tredje alder, og som ligger tæt på blandt andet lægehus og det friplejehjem, der også planlægges.
Tekst, grafik, billeder, lyd og andet indhold på dette website er beskyttet efter lov om ophavsret. DK Medier forbeholder sig alle rettigheder til indholdet, herunder retten til at udnytte indholdet med henblik på tekst- og datamining, jf. ophavsretslovens §11 b og DSM-direktivets artikel 4.
Kunder med IP-aftale/Storkundeaftaler må kun dele DK Nyts artikler internt til brug for behandling af konkrete sager. Ved deling af konkrete sager forstås journalisering, arkivering eller lignende.
Kunder med personligt abonnement/login må ikke dele DK Nyts artikler med personer, der ikke selv har et personligt abonnement på DK Nyt
Afvigelse fra ovenstående kræver skriftligt tilsagn fra DK Medier.


























